Casa 92 m², com suíte e garagem coberta – Bela Vista da Lagoa – Pé-direito alto
Bela Vista da Lagoa, Três Lagoas/MSR$ 450.000,00Venda
Sobre o Imóvel
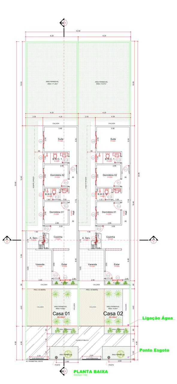
Sala com pé-direito alto, suíte e quintal amplo nos fundos — uma casa pensada para quem busca mais conforto no dia a dia no bairro Bela Vista da Lagoa. Agende seu atendimento. Descrição do imóvel Em fase final de execução, com entrega prevista para maio de 2026, esta casa no Bela Vista da Lagoa reúne características que valorizam funcionalidade, ventilação e boa distribuição dos ambientes. O projeto conta com 92 m² de área construída em um terreno com 211,56 m² de área total, oferecendo um equilíbrio interessante entre área interna e espaço externo. Um dos destaques está na sala com pé-direito alto, recurso que amplia a sensação de espaço e favorece a iluminação natural. A casa também possui quartos com suíte, trazendo mais privacidade e praticidade para a rotina. Na parte externa, a garagem coberta agrega proteção ao veículo, enquanto o quintal nos fundos com 74,67 m² cria possibilidades para lazer, convivência, jardim ou futura área gourmet. Ficha técnica Tipologia: Casa à venda Bairro: Bela Vista da Lagoa Área construída: 92 m² Área total: 211,56 m² Quartos: com suíte Sala: com pé-direito alto Garagem: coberta Quintal ao fundo: 74,67 m² Previsão de término da obra: maio de 2026 Diferenciais Sala com pé-direito alto Suíte para mais conforto no dia a dia Garagem coberta Quintal amplo ao fundo Boa relação entre área construída e área externa Imóvel localizado no bairro Bela Vista da Lagoa Para quem este imóvel faz sentido Uma opção interessante para quem valoriza uma casa nova, com projeto funcional, espaço de quintal e ambientes pensados para oferecer mais conforto na rotina da família. Sala com pé-direito alto, suíte e quintal amplo nos fundos — uma casa pensada para quem busca mais conforto no dia a dia no bairro Bela Vista da Lagoa. Agende seu atendimento. Descrição do imóvel Em fase final de execução, com entrega prevista para maio de 2026, esta casa no Bela Vista da Lagoa reúne características que valorizam funcionalidade, ventilação e boa distribuição dos ambientes. O projeto conta com 92 m² de área construída em um terreno com 211,56 m² de área total, oferecendo um equilíbrio interessante entre área interna e espaço externo. Um dos destaques está na sala com pé-direito alto, recurso que amplia a sensação de espaço e favorece a iluminação natural. A casa também possui quartos com suíte, trazendo mais privacidade e praticidade para a rotina. Na parte externa, a garagem coberta agrega proteção ao veículo, enquanto o quintal nos fundos com 74,67 m² cria possibilidades para lazer, convivência, jardim ou futura área gourmet. Ficha técnica Tipologia: Casa à venda Bairro: Bela Vista da Lagoa Área construída: 92 m² Área total: 211,56 m² Quartos: com suíte Sala: com pé-direito alto Garagem: coberta Quintal ao fundo: 74,67 m² Previsão de término da obra: maio de 2026 Diferenciais Sala com pé-direito alto Suíte para mais conforto no dia a dia Garagem coberta Quintal amplo ao fundo Boa relação entre área construída e área externa Imóvel localizado no bairro Bela Vista da Lagoa Para quem este imóvel faz sentido Uma opção interessante para quem valoriza uma casa nova, com projeto funcional, espaço de quintal e ambientes pensados para oferecer mais conforto na rotina da família.
- Aceita Financiamento
- Casa Terrea

Isabela Xavier Mariano
CRECI 16888Gostou e deseja saber mais?
Preencha o formulário abaixo e receba em instantes mais informações do nosso time!
Outros Imoveis Próximos á Bela Vista da Lagoa, Três Lagoas
Você ainda não achou o que procurava?
Deixe suas informações e nossa equipe irá entrar em contato com você para entender suas necessidades.
Temos um time de especialistas preparados para te conectar as melhores oportunidades.

















































